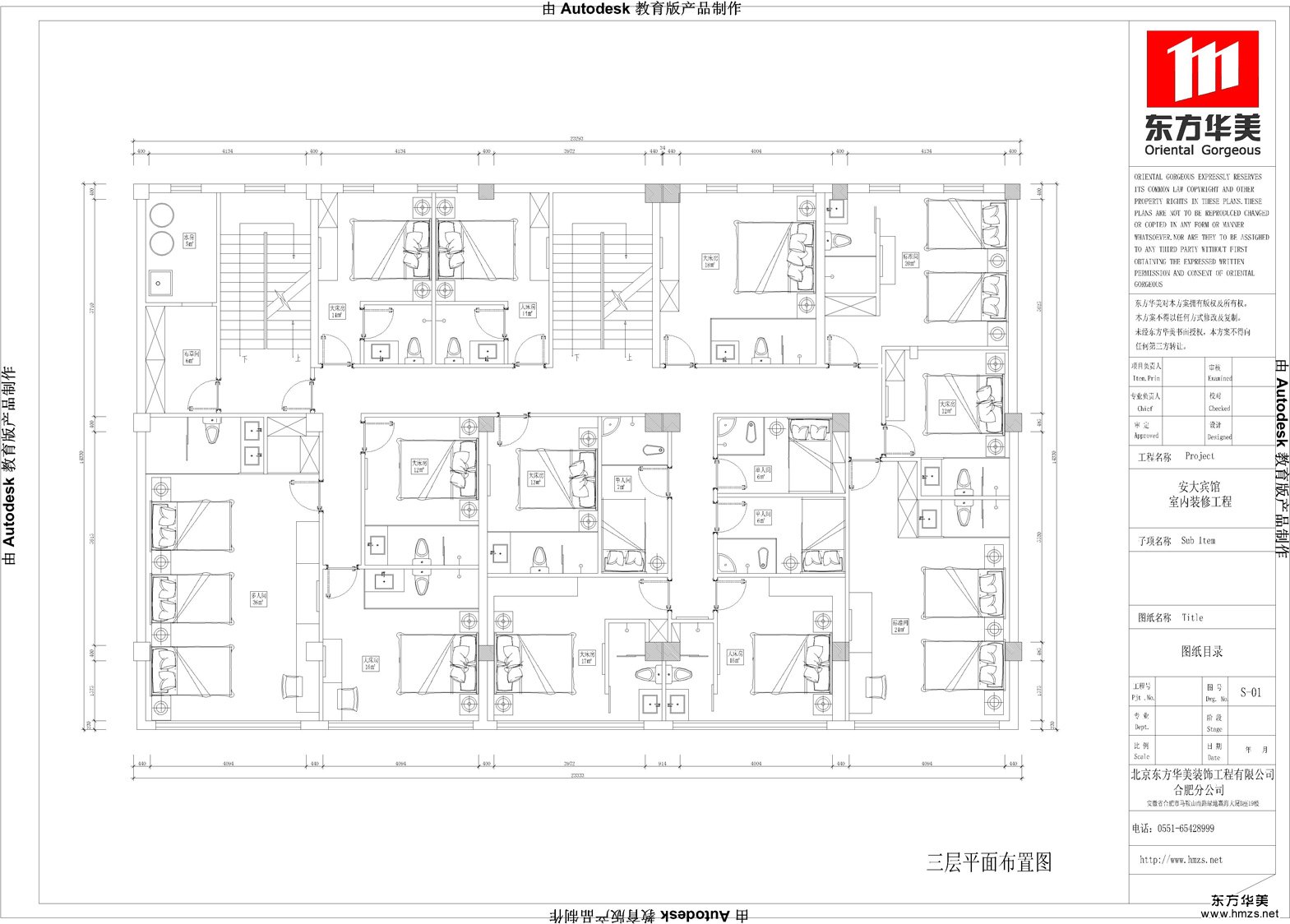
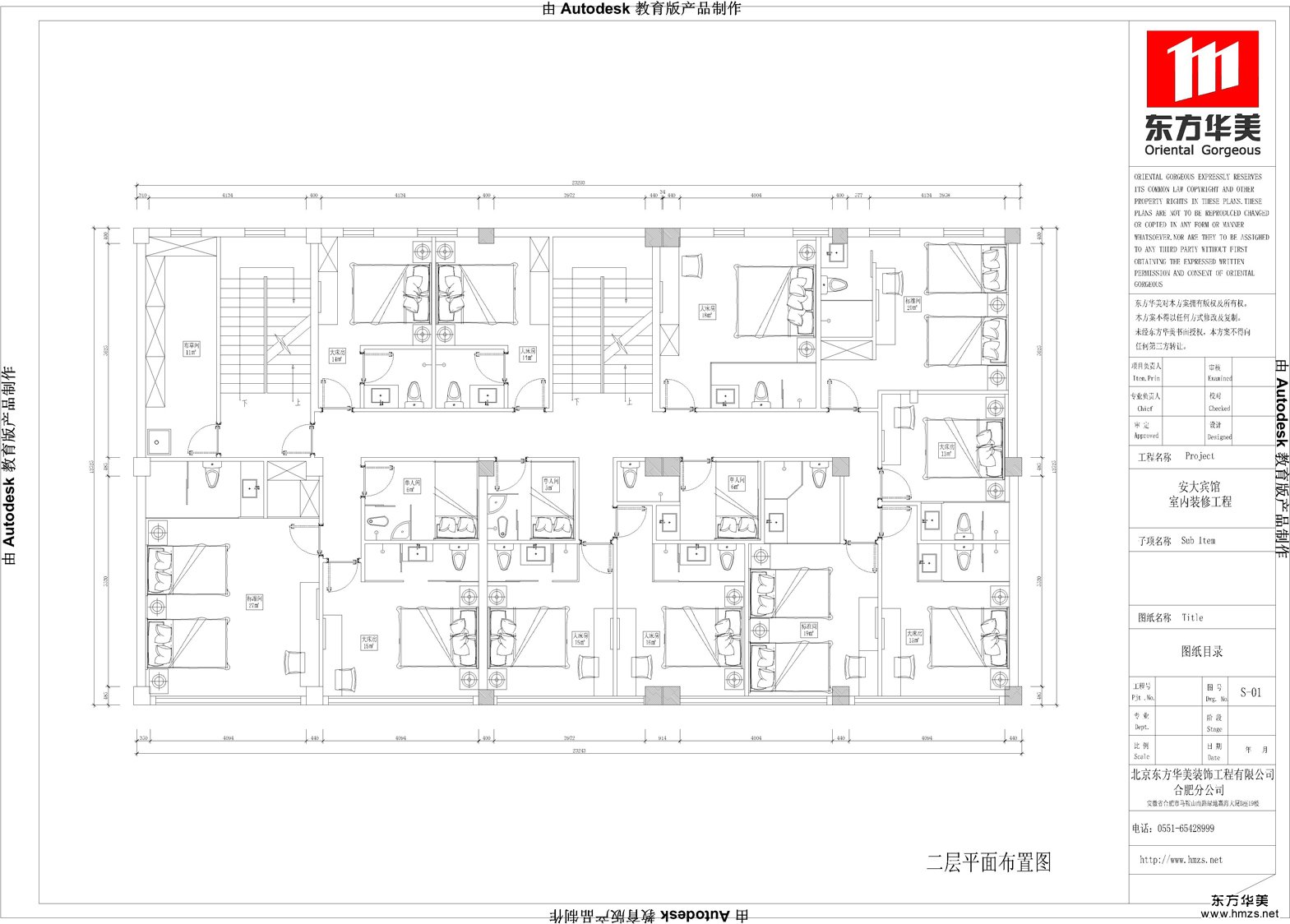
合肥安大新區主題酒店
| 項目名稱 | 合肥安大新區主題酒店 | 行業屬性 | 酒店/餐飲/會所 |
| 項目地址 | 合肥安徽大學新區 | 項目造價 | 65萬 |
| 主關鍵詞 |
▄原建筑結構分析: 酒店空間的功能無論多么完善,布局多么合理,都必須做到動靜分明。動與靜是按照人的日常生活行為來劃分和界定的。一般來說,有的起居室、餐廳等是公共活動較多的區域,屬于動態空間。
▄設計需求: 主題酒店裝修設計之室內設計首先要有一個整體的構思.要確定目標顧客。此酒店坐立于高校區,主要消費群體以年輕人為主,所以在設計風格上偏向于動漫、網絡風格。
▄設計風格定位: 店的空間設計在保證使用功能的前提下,要以空間使用者的因素為主線,體現人文的關懷、個性的突出、時代的氣息,給使用者留有自我表現的余地,并要牢固地樹立整體設計的觀念,才能做出獨具風采,與眾不同的優秀方案。此案例在裝修設計上采用動漫、電影、音樂藝術、現代時尚等等風格,整個酒店呈現出對比強烈、色彩純度高,富有個性的特點。


北京鑄誠大廈辦公裝修工程
北京銀河SOHO辦公裝修工程
301醫院裝修工程
